Aktuálně můžete v lokalitě Olomouc vybírat z nabídky 308 bytů.
Přehled nemovitostí: prodej byty > 5+1 Zpět na přehled nabídek

Prodej, Byt 5+1, Olomouc

neuvedeno

179 m2

osobní

G - Mimořádně nehospodárná

20254

27.04.2026

Cena: 14800000 CZK / objekt
Poznámka k ceně: cena je včetně DPH, provize a právních služeb 1

Poslat dotaz k nabídce
Zásady používání osobních údajů

Prodejce

Makléř: Andrea Minaříková

Telefon: 736 532 ...

E-mail: andrea. ...

Zobrazit celý kontakt

Nemovitost nabízí

DACHI s.r.o.

Ztracená 34, 77900 Olomouc

www.dachi.cz

Zobrazit kontakt na RK

Zobrazit všechny nabídky RK

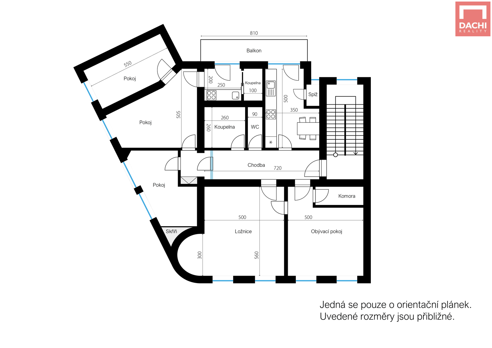
Nabízíme k prodeji prostorný cihlový byt o dispozici 5+2 se samostatnou garáží a balkonem o velikosti 12 m2, který se nachází v jedné z nejatraktivnějších částí Olomouc, na ulici Polská. Byt o užitné ploše 179 m2 zabírá celé jedno podlaží domu a nabízí velkorysý prostor s širokými možnostmi využití. Velkým benefitem je výborná poloha - v bezprostřední blízkosti parku, který poskytuje příjemné prostředí pro odpočinek i volnočasové aktivity. V docházkové vzdálenosti se nachází také Galerie Šantovka, díky čemuž máte veškerou občanskou vybavenost snadno dostupnou. Byt je v současnosti prakticky využíván jako dvougenerační, a to díky dvěma kuchyním a dvěma koupelnám. Dispoziční řešení tak nabízí vysokou míru flexibility pro vícečlenné bydlení či kombinaci soukromého a pracovního zázemí. Jednotka však nemá samostatné vstupy a je řešena jako jeden celek, což odpovídá jejímu dosavadnímu využití v rámci rodinného soužití. Interiér nabízí velké a světlé místnosti s dostatkem prostoru pro pohodlné bydlení. Původní dveře dodávají bytu osobitý charakter a příjemnou atmosféru. Balkon je orientován do parku a poskytuje příjemné místo pro každodenní relaxaci. Samostatná garáž umístěná za domem zajišťuje pohodlné parkování i další úložný prostor. Za domem se nachází zahrada, jejíž využití případným novým vlastníkem by bylo předmětem dohody s ostatními vlastníky. Součástí prodeje je také podíl na nebytovém prostoru v přízemí domu, který je aktuálně pronajímán - vlastník bytu tak získává odpovídající podíl (1/3) na tomto prostoru. Měsíční zálohy na provoz bytu činí 8.290 Kč. Vzhledem k velikosti bytu a jeho využití odpovídající dvěma bytovým jednotkám jsou tyto náklady velmi příznivé. Vytápění i ohřev teplé vody je zajištěn plynovým kotlem. Tato nemovitost je ideální volbou pro ty, kteří hledají prostorné a klidné bydlení v atraktivní lokalitě s výbornou dostupností. V případě zájmu o prohlídku nás neváhejte kontaktovat.



Nahoru