Makléř: Ing. Radka Dostálová
Telefon: 723 835 ...
E-mail: dostalo ...
Zobrazit celý kontaktTelefon: 723 835 931
E-mail: dostalova@reality-proradost.cz
Nemovitost nabízí
REALITY PRORADOST
Opletalova 1417/25, 110 00 Praha 1
Zobrazit kontakt na RK704 532 094
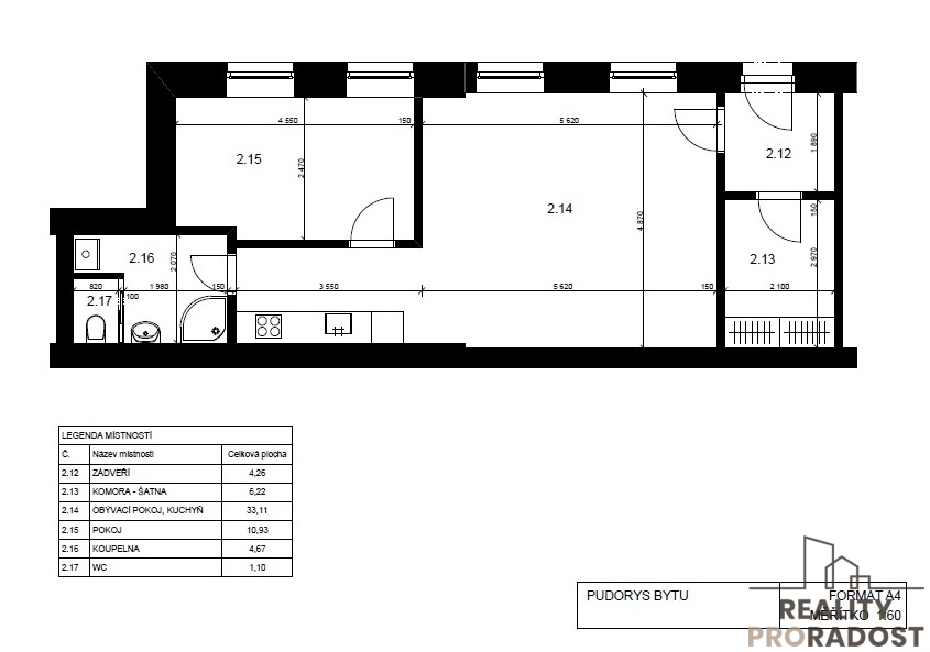
Nabízíme k pronájmu kvalitně zrekonstruovaný byt 2+kk o celkové podlahové ploše 60,29 m2, v 2.NP (1. patro) historického domu, v samotném centru města Olomouce. Byt nabízí velkorysý obytný prostor s kuchyňským koutem (33,11 m2) a velikostně nadstandardní komoru s vestavěnými skříněmi (6,22 m2). Kuchyňská linka je plně vybavená - včetně mikrovlnné trouby a myčky. Ledničku je možné výhodně odkoupit od stávajícího nájemníka. Dostatek úložného prostoru poskytují vestavné skříně ve vstupní chodbě a komoře. Topení a ohřev vody zajišťuje vlastní plynový kondenzační kotel, s úsporným provozem. Okna jsou orientována na J, do klidného dvora. Vstup do bytu je z pavlače, přístupné (společné) pouze pro dva byty. Byt je připraven pro příjem satelitního signálu a internetu. Požadované nájemné - 16.000,- Kč/měsíc + zálohy na vodu (2 osoby) - 1.200,- Kč/měsíc + případně internet (od 330,- Kč/měsíc) + vratná kauce (20.000,- Kč) + provize RK - 16.000,- Kč, elektřinu a plyn si nájemník přepisuje na sebe. Byt bude bez nábytku (popis viz výše), nachystán pro nového nájemníka - vyklizen a vymalován - nejpozději k 1.5.2026. Prohlídky jsou možné již nyní. Pěkný, slunný byt s výbornou dostupností veškerých vymožeností a zábavy města.
Pronájem bytu 2+kk,64 m2 U solných mlýnů, Olomouc - Holice
Pronájem bytu 2+kk s prostorným balkonem v moderní novostavbě cihlového bytového domu ,,B" v Olomouci - Holici na ulici U Solných mlýnů. Byt o výměře…
Nájem prostorného bytu 2+kk s lodžií, který se nachází v klidné lokalitě v Olomouci
Nájem prostorného bytu s lodžií, který se nachází v klidné lokalitě v Olomouci. Nájem bytu 2+kk (56,4 m²) je po rekonstrukci a ve velmi udržovaném…