Makléř: Ing. Petr Holík
Telefon: 725 568 ...
E-mail: holik@r ...
Zobrazit celý kontaktTelefon: 725 568 414
E-mail: holik@reality-proradost.cz
Nemovitost nabízí
REALITNÍ AGENTURA PRORADOST
Vídeňská 1014/18b, 63900 Brno - Štýřice
Zobrazit kontakt na RK704 532 094
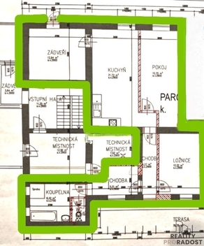
Nabízíme vám výhradně budoucí prodej nově rekonstruovaného bytu o dispozici 3+kk v rodinném domě o třech bytových jednotkách s podílem na domě a pozemku v obci Nová Ves u Litovle. Byt s podlahovou plochou bytu 80,48 m2 se nachází v přízemí domu a patří k němu i zahrádka vč. kůlny o velikosti 40 m2. Vrchní patro domu je odděleno a je zde vlastní vstup do domu a na zahradu. Konstrukce v 1. patře jsou tvárnice, přízemí domu je smíšené zdivo - pálená cihla a suchá vepřovice. Dům je zateplen polystyrenem. Vytápění bytu novým elektrickým kotlem, na kterém lze ovládat vytápění od 2 kW - 14 kW dle potřeby. Ohřev vody - nový elektrický bojler. V bytě je nově vybudováno - elektřina, topení, voda, vnitřní nové omítky, stupačky, betonová podlaha vylitá nivelační stěrkou, plastová okna, radiátory. Co se týká dalšího dovybavení bytu, tak současný majitel nabízí možnost dobudování pro nového vlastníka a to za velmi příznivou cenu dle výběru materiálu a podobně. Jedná se například o podlahy, kuchyň, koupelnu (počítá se tam s vanou, WC, umyvadlem, sprchovým koutem). Vstupní dveře jsou nové bezpečnostní. Přední strana domu s orientací na Jih jsou kvalitní dřevěná okna dvojskla. Zadní strana domu s orientací na sever jsou plastová okna trojskla. Každý byt v domě má samostatné měřiče. Vrchní patro v domě již obývá velmi příjemná rodina. V současné době se řeší rekonstrukce posledního sousedního bytu v domě, která bude rovněž nabídnuta posléze ke koupi. Součástí koupě bude vlastní parkovací místo podélné s výměrou 2,5 m x 6m, které se ještě bude stavět. Jelikož si projekt vyžádal drobné úpravy, řeší se kolaudace, která bude dokončena v brzké době. Půdorys bytu je přiložen ve fotografiích, je ohraničen zeleně. Jedná se o klidnou lokalitu s dobrou dostupností do okolních měst a vzdáleností do Litovle 6 km, Olomouce 20 km, Mohelnice 17 km. V případě zájmu o další informace ohledně prodeje a výhodného financování kontaktujte realitního zprostředkovatele. PENB tř. B - velmi úsporná.
Prodej nového bytu 3+kk / Litovel, Severní - 301
Představujeme vám nový developerský projekt Byty Litovel Severní s prvky rezidenčního bydlení a netradiční architekturou zapadající do rozvíjející se…
Prodej nového bytu 3+kk / Litovel, Severní - 509
Představujeme vám nový developerský projekt Byty Litovel Severní s prvky rezidenčního bydlení a netradiční architekturou zapadající do rozvíjející se…