Aktuálně můžete v lokalitě Olomouc vybírat z nabídky 307 bytů.
Přehled nemovitostí: pronájem byty > 2+kk Zpět na přehled nabídek

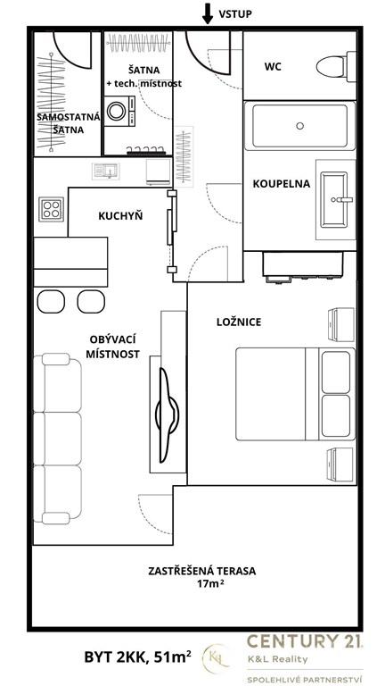
Pronájem plně vybaveného bytu 2+kk s terasou a parkovacím stáním, Olomouc - Slavonín

51 m2

51 m2

osobní

B - Velmi úsporná

973911

16.02.2026

Cena: 18000 CZK / objekt / měsíc
Poznámka k ceně: + služby 5658 Kč, parkovací stání 1000 Kč, kauce 2x nájem, provize RK 1

Poslat dotaz k nabídce
Zásady používání osobních údajů

Prodejce

Makléř: Ing. Řezníčková Klára

Telefon: 420 603 ...

E-mail: klara.r ...

Zobrazit celý kontakt

Nemovitost nabízí

CENTURY 21 K&L Reality

tř. Kosmonautů 1288/1, 779 00 Olomouc

www.century21.cz/kancelar-k-l-reality

Zobrazit kontakt na RK

Zobrazit všechny nabídky RK

Představujeme vám k dlouhodobému pronájmu prostorný a nadstandardně vybavený byt o dispozici 2+kk a ploše 51 m2, situovaný v klidné a žádané lokalitě na ulici Topolová. K dispozici je navíc prostorná krytá terasa o velikosti 17 m2 s výhledem do zeleně, která poskytuje příjemné místo pro relaxaci nejen v letních měsících. Byt je kompletně vybavený, v kuchyni naleznete indukční varnou desku, elektrickou troubu, myčku nádobí i vestavěnou lednicí s mrazákem. Dále je k dispozici samostatná toaleta, koupelna s vanou, šatna s úložnými skříněmi na míru a pračkou. Na patře bytu je navíc umístěna praktická komora vhodná k uložení kol, lyží, pneumatik a sezónního vybavení. Další úložný prostor nabídne i šatní skříň na chodbě. Součástí pronájmu je vyhrazené venkovní parkovací stání. Lokalita nabízí vynikající dopravní dostupnost - nájezd na dálnici je vzdálen pouhé 3 minuty jízdy autem, tramvajová zastávka je dostupná pěšky přibližně za 10 minut. V okolí se nachází přírodní lokalita s rybníkem Hamrys a cyklostezkou, ideální pro sportovní i rekreační aktivity. Dům je celkově tichý a dobře udržovaný vhodný pro nájemce, kteří ocení klidné prostředí, vysoký standard a zároveň výbornou dostupnost do centra města. Majitel požaduje nájemce bez zvířat, vhodné jak pro jednotlivce, tak i pár. Pro více informací a prohlídku nás neváhejte kontaktovat.



Nahoru