Aktuálně můžete v lokalitě Olomouc vybírat z nabídky 267 bytů.
Přehled nemovitostí: pronájem byty > 2+kk Zpět na přehled nabídek

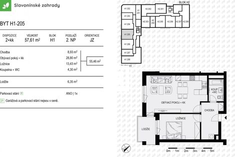
Pronájem bytu 2+kk, SLAVONÍNSKÉ ZAHRADY - dům H1, Olomouc

neuvedeno

neuvedeno

osobní

B - Velmi úsporná

00908

15.12.2025

Cena: 19500 CZK / objekt / měsíc
Poznámka k ceně: + 3.500,- Kč služby, + 39.000,- Kč jistota 1

Poslat dotaz k nabídce
Zásady používání osobních údajů

Prodejce

Makléř: Bohdan Nerušil

Telefon: 777 777 ...

E-mail: bohdan. ...

Zobrazit celý kontakt

Nemovitost nabízí

ALLE reality & development s.r.o.

Wellnerova 1354/29, Olomouc

Zobrazit kontakt na RK

Zobrazit všechny nabídky RK

Ve výhradním zastoupení majitele Vám realitní kancelář ALLE reality&development s.r.o. nabízí pronájem bytu v příjemné a klidné lokalitě města Olomouce na Loudově ulici. Úplně nový byt H1-205 o dispozici 2+kk má podlahovou plochu 57,61m, balkon o velikosti 6,35 m a nachází se ve 2NP bytového domu s nízkým počtem bytových jednotek. Vysoký komfort bydlení je zajištěn moderním standardním vybavením: podlahové vytápění po celé ploše jednotek, obložkové zárubně, vinylové podlahy, keramické obklady. Kuchyň je plně vybavená ledničkou, mrazákem, troubou a varnou deskou s digestoří. V ložnici se nachází úložná skříň a postel s matrací a v koupelně si můžete dopřát odpočinek ve vaně. Součástí bytu je jedno garážové stání a komora. Velkou předností lokality je dostatek zeleně, odpočinková zóna kolem přírodního rybníku Hamrys, cyklistická stezka, to vše pro čas odpočinku. Skvělá občanská vybavenost, vynikající dostupnost MHD včetně nově prodloužené tramvajové tratě, a bezproblémový výjezd na dálnici naopak usnadní pracovní část dne. Doporučujeme prohlídku s makléřem. <a href="https://www.eurobydleni.cz/byty/1_1/pardubice/obec-pardubice/pronajem/"><strong>Pronájem bytu 1+1 Pardubice</strong></a>




Pronájem bytu 2+kk Olomouc na Eurobydleni.cz


Nahoru