Makléř: Lenka Nerušilová
Telefon: 792 301 ...
E-mail: lenka.n ...
Zobrazit celý kontaktTelefon: 792 301 188
E-mail: lenka.nerusilova@alle.cz
Nemovitost nabízí
ALLE reality & development s.r.o.
Wellnerova 1354/29, Olomouc
Zobrazit kontakt na RK792 301 155
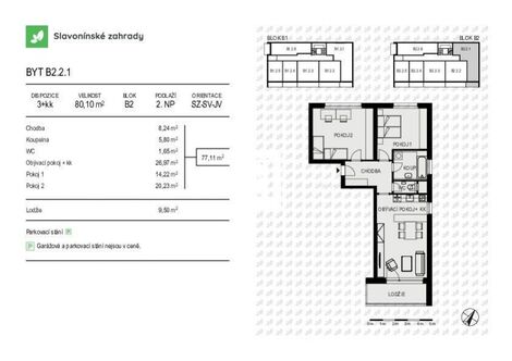
Z pověření developera Vám realitní kancelář ALLE reality&development s.r.o. v exkluzivním zastoupení nabízí již V. etapu úspěšného Projektu Slavonínské zahrady, jež navazuje prodejem budovy B. Projekt umožňuje svým rezidentům dostupné bydlení v příjemné a klidné lokalitě města Olomouce. Více informací na webových stránkách alle. Byt B2.2.1 o dispozici 3+kk má podlahovou plochu 80,1 m, terasa o velikosti 9,5 m a nachází se ve 2.NP bytového domu s nízkým počtem bytových jednotek. Velkou předností lokality je dostatek zeleně, odpočinková zóna kolem přírodního rybníku Hamrys, cyklistická stezka, to vše pro čas odpočinku. Skvělá občanská vybavenost, vynikající dostupnost MHD včetně nově prodloužené tramvajové tratě, a bezproblémový výjezd na dálnici naopak usnadní pracovní část dne. Vysoký komfort bydlení je zajištěn moderním standardním vybavením: podlahové vytápění po celé ploše jednotek, obložkové zárubně, vinylové podlahy, keramické obklady - vše dle volby klienta a také základní příprava pro venkovní žaluzie. Garážová stání a komory k dokoupení jsou samozřejmostí. Vyberte si své vysněné bydlení včas! Klient hradí nad rámec kupní ceny poplatek za právní a administrativní servis. <a href="https://www.eurobydleni.cz/byty/2_kk/olomouc/obec-olomouc/prodej/"><strong>Prodej bytu 2+kk Olomouc</strong></a>
Prodej, Byt 3+kk, Olomouc
Nabízíme vám ke koupi bytovou jednotku o dispozici 3+kk v 6. nadzemním podlaží bytového domu s výtahem na ulici Handkeho v Olomouci - Nové Sady.…
Prodej bytu v novostavbě 3+kk, s balkónem, Slavonínské zahrady - Loudova
Nová etapa projektu SLAVONÍNSKÉ ZAHRADY navazuje na již realizované budovy v okolí ulice Loudova a nabízí kvalitní domov pro rodiny s dětmi, mladé…
Prodej bytu 3+kk Olomouc na Eurobydleni.cz