Makléř: Ing. Carroll Lenka
Telefon: 773 111 ...
E-mail: lenka@c ...
Zobrazit celý kontaktTelefon: 773 111 103, 773 111 103
E-mail: lenka@carrolldohnal.cz
Nemovitost nabízí
Carroll & Dohnal s.r.o.
Hasičská 551/52, 700 30 Ostrava
Zobrazit kontakt na RK777 069 607
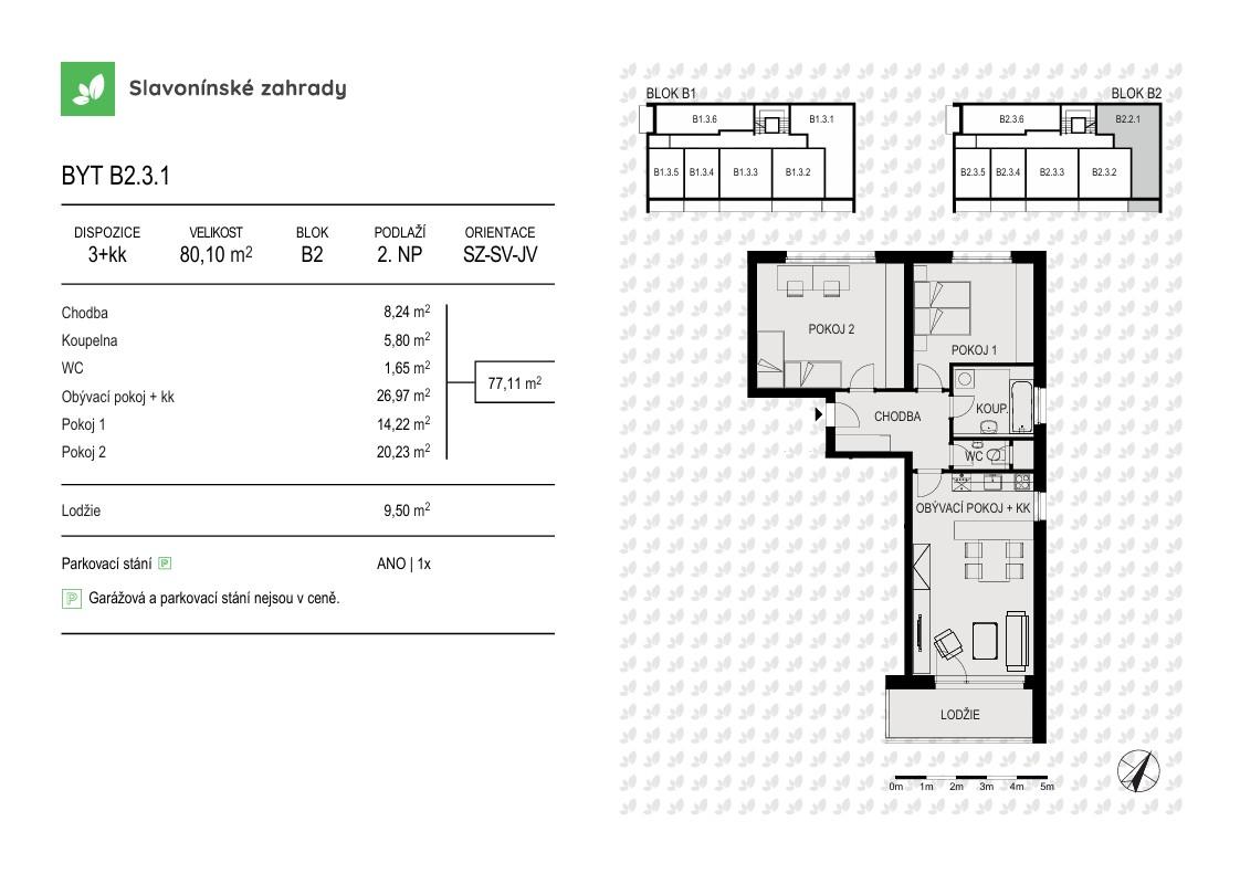
Nová etapa projektu SLAVONÍNSKÉ ZAHRADY navazuje na již realizované budovy v okolí ulice Loudova a nabízí kvalitní domov pro rodiny s dětmi, mladé páry, seniory i studenty. Budova B tvořená dvěma samostatnými sekcemi o čtyřech podlažích zahrnuje celkem 48 moderních bytů v dispozicích od 1kk do 3kk. Každý byt disponuje balkonem či terasou a jednotky v 1. NP mají navíc prostorné předzahrádky, ideální pro relax i rodinný život. Součástí projektu je podzemní parkovací podlaží, které propojuje obě sekce domu, a je tak zajištěno komfortní parkování pro obyvatele. K dokoupení jsou také komory jak v podzemním podlaží, tak na jednotlivých patrech. Pro více informací navštivte webové stránky Slavoninske-zahrady. Nabízíme prostorný byt s označením B2.3.1 o dispozici 3+kk, podlahové ploše 80,1 m2 v 3. NP, s balkónem 9,5 m2 ideální pro rodiny s dětmi, páry nebo jako investiční bydlení. Byt je navržen s důrazem na funkčnost, estetiku a soukromí. Velká okna zajišťují dostatek denního světla, přízemní umístění nabízí snadný přístup na terasu a do zahrady, která rozšiřuje obytný prostor a vytváří ideální místo pro relaxaci i volnočasové aktivity. Součástí standardu je podlahové vytápění v celém bytě, vinylové podlahy, keramické obklady, obložkové zárubně a možnost výběru z několika designových a materiálových variant. Připraveno je i technické zázemí pro instalaci venkovních žaluzií a sdílené fotovoltaiky. K bytu lze dokoupit garážové/venkovní stání i sklep. Lokalita Slavonína spojuje výhody města a přírody v okolí najdete cyklostezky, rybník, zeleň i kompletní občanskou vybavenost. MHD, školy, školky, zdravotní péče i obchody jsou v docházkové vzdálenosti, stejně jako napojení na hlavní dopravní tahy. Pokud hledáte moderní bydlení s vysokým standardem, soukromím a vlastním kouskem zeleně, je tento byt skvělou volbou. Dokončení projektu je plánováno na podzim 2027. Prodej je již zahájen kontaktujte nás pro více informací. <a href="https://www.eurobydleni.cz/byty/2_kk/olomouc/obec-olomouc/prodej/"><strong>Prodej bytu 2+kk Olomouc</strong></a>
Prodej, Byt 3+kk, Olomouc
Ve výhradním zastoupení majitele Vám nabízíme k prodeji byt 3+kk o celkové užitné ploše 74,3 m2 (včetně balkónu), nacházející se v 1. patře (2.NP)…
Prodej, Byt 3+kk, Olomouc
Historie, styl a naprostý klid - to vše nabízí byty v exkluzivním projektu Vídeňská. Nabízíme Vám jako výhradní prodejce naprosto výjimečný…
Prodej bytu 3+kk Olomouc na Eurobydleni.cz