Aktuálně můžete v lokalitě Olomouc vybírat z nabídky 225 bytů.
Přehled nemovitostí: prodej byty > 2+kk Zpět na přehled nabídek

Prodej, Byt 2+kk, Olomouc

53 m2

50 m2

osobní

A - Mimořádně úsporná

20027

27.11.2025

Cena: 5890000 CZK / objekt
Poznámka k ceně: cena je včetně provize, právního servisu a DPH 1

Poslat dotaz k nabídce
Zásady používání osobních údajů

Prodejce

Makléř: Andrea Minaříková

Telefon: 736 532 ...

E-mail: andrea. ...

Zobrazit celý kontakt

Nemovitost nabízí

DACHI s.r.o.

Ztracená 34, 77900 Olomouc

www.dachi.cz

Zobrazit kontakt na RK

Zobrazit všechny nabídky RK

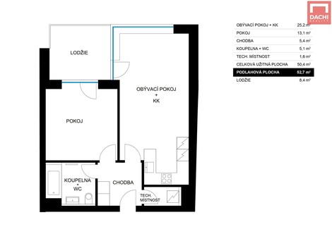
Nabízíme ke koupi příjemný a světlý byt o dispozici 2+kk v oblíbené rezidenční části Olomouce - Holandská čtvrť na ulici Aloise Rašína. Byt se nachází v 6. nadzemním podlaží bytového domu s výtahem a má podlahovou plochu 52 m2 a prostornou lodžii o velikosti 8 m2. Díky jihovýchodní orientaci je interiér krásně prosvětlený po celý den a působí vzdušným dojmem. Dispozice bytu je prakticky řešena - z prostorné předsíně je vstup do všech místností, pokoje jsou tedy neprůchozí a z každého z nich vede přímý vstup na lodžii, která nabízí dostatek prostoru pro odpočinek či posezení. Obývací pokoj s kuchyňským koutem tvoří hlavní obytnou část bytu, ložnice poskytuje dostatek klidu a soukromí. Samozřejmostí je koupelna a samostatné WC, nechybí ani komora s přívodem vody a odpadem pro pračku. Byt se prodává částečně vybavený, takže je ideální jak pro vlastní bydlení, tak i jako investiční příležitost - po drobných úpravách ho můžete ihned pronajmout. Potěší vás také nízké měsíční náklady na provoz, díky nimž je bydlení úsporné a bez zbytečných výdajů. Samotná lokalita pak nabízí veškerou občanskou vybavenost a skvělou dostupnost do centra. Pokud vás tato nabídka zaujala, neváhejte mě kontaktovat - ráda vám byt osobně ukážu a zodpovím všechny vaše dotazy. Těším se na společnou prohlídku.



Nahoru